 |
Nằm trên một con phố nhỏ gần Hồ Tây, ngôi nhà nhỏ chỉ 60m2 với tên gọi "Nhà Thân Thiện" là nốt trầm đầy cảm xúc giữa những ồn ào thành thị.
|
Nằm trong một khu vực yên tĩnh gần Hồ Tây, Hà Nội, "Nhà Thân Thiện" được thiết kế cho mục đích nghỉ ngơi cuối tuần của một gia đình trẻ. Ý tưởng này dựa trên ba yếu tố: cách tổ chức không gian cho một căn nhà cuối tuần trong thành phố, kích thước 6x10m; Sử dụng vật liệu thân thiện, tạo ra một không khí mộc mạc, thư giãn. Cuối cùng nhưng không kém phần quan trọng là vấn đề tiết kiệm năng lượng cho ngôi nhà nằm hướng Tây.
 |
Hai cây cau cảnh trước cửa nhà như đưa gia chủ trở về làng quê Việt xưa cũ.
|
 |
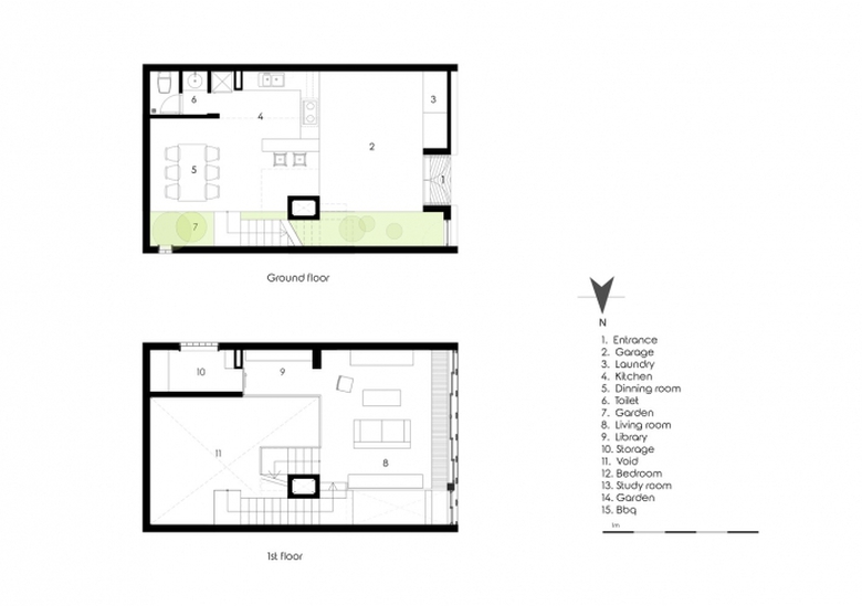
Tầng trệt được thiết kế đơn giản với không gian phòng ăn, bếp, gara ô tô, nhà vệ sinh. (Mặt bằng thiết kế tầng trệt và tầng 1).
|
 |
Khu vực phòng ăn ngập tràn ánh sáng tự nhiên với điểm nhấn là không gian xanh tươi mát.
|
 |
Lấy cảm hứng từ kiến trúc truyền thống và các vật liệu cơ bản, nhưng thiết kế áp dụng cho không gian sống hiện đại.
|
 |
Khu vực bếp rộng rãi tích hợp quầy bar nhỏ phục vụ cho những buổi party cùng bạn bè.
|
 |
Cầu thang lên tầng hai đầy cảm xúc và thân thiện với môi trường từ vật liệu tới bóng cây xanh.
|
 |
Không gian phòng khách ở tầng 1 rộng rãi và ngập tràn ánh sáng mặt trời nhưng vẫn vô cùng mát mẻ.
|
 |
Toàn bộ mặt tiền ngôi nhà được thiết kế như một màn hình khổng lồ với vật liệu khung nhôm - thanh tre.
|
 |
Khả năng đóng mở đa dạng của hệ thống cửa mang đến hiệu ứng ánh sáng và không gian sống linh hoạt cho gia chủ. Luôn đảm bảo được không gian mở cũng như sự kín đáo khi cần thiết.
|
 |
Ngay cạnh phòng khách tầng 1 là khu vực thư viện và kho chứa đồ.
|
 |
Mặt bằng thiết kế tầng 2 và tầng 3 với không gian sống của các thành viên gia đình bao gồm: phòng ngủ, phòng đọc sách, vườn BBQ...
|
 |
Ánh sáng mặt trời được lọc qua những thanh tre mang đến hiệu ứng ánh sáng tuyệt đẹp tại phòng đọc sách.
|
 |
Ngôi nhà luôn đầy ánh sáng tự nhiên, do đó giảm thiểu thời gian dành cho chiếu sáng nhân tạo và tiết kiệm năng lượng.
|
 |
Khu vực cầu thang được thiết kế đơn giản mà tinh tế.
|
 |
Phòng ngủ tầng 2.
|
 |
Phòng ngủ tầng 3.
|
 |
Không cố gắng tận dụng diện tích vào mục đích sử dụng cơ bản, gia chủ đã "để mặc" cho ánh sáng và gió đến "ở cùng".
|
 |
Mặt cắt công trình.
|
 |
Trong đêm, ngôi nhà mang đến những cảm xúc nhớ thương về miền quê cũ, nơi mỗi nhà quây quần bên chõng tre nói cười vui vẻ.
|
Xem thêm video: Phòng ăn thượng hạng ông Trump dành đãi ông Tập Cận Bình
Bình luận bài viết (0)
Gửi bình luận